The Comfort
Overview
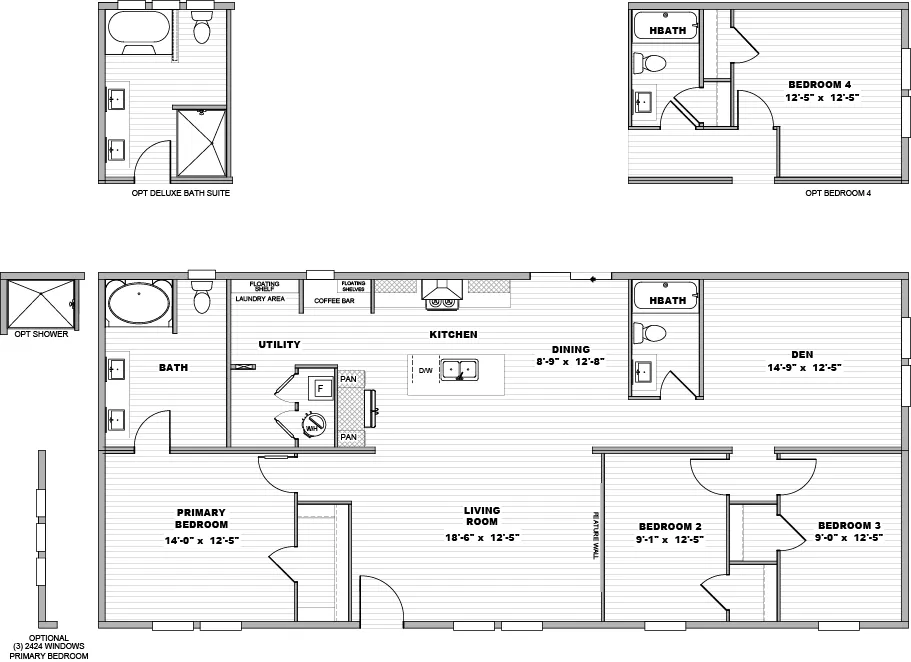
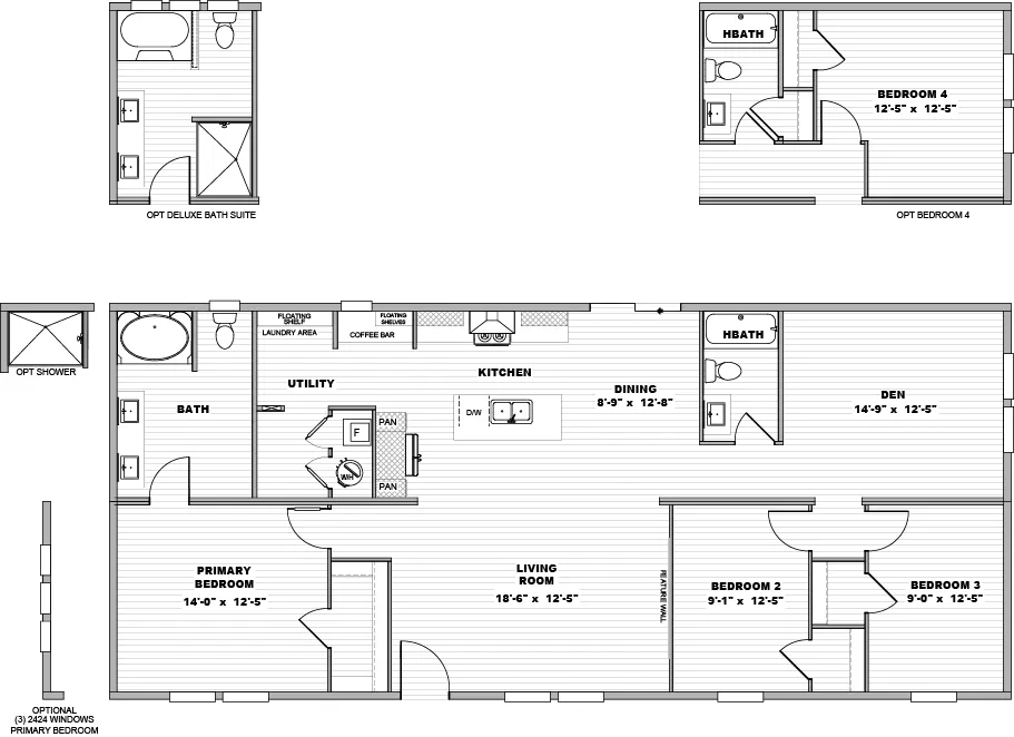
Floor Plan
- IN STOCK
- SALE
The Comfort
3 beds
2 baths
1,580 sq. ft.
Overview
Welcome to your dream home! This Energy Smart beauty offers comfort, style, and functionality for modern living. ? 3 Bedrooms, 2 Bathrooms ? Living Room & Den (or optional 4th bedroom) ? Linoleum floors throughout for easy maintenance Kitchen Features: Coffee bar for your morning brew Large eat-at island for family gatherings Samsung stainless deluxe appliances Primary Suite: Separate shower & relaxing soaker tub Extra Perks: Patio doors off the dining room for backyard fun Energy-efficient design to save on utilities
Floor Plan

Homes built with you in mind
We accept trades!
Find a new home you love? Contact us for more information about our trade-in requirements and to schedule your free trade evaluation.
Learn MoreTake the next step
† Advertised starting sales prices are for the home only. Delivery and installation costs are not included unless otherwise stated. Starting prices shown on this website are subject to change, see your local Home Center for current and specific home and pricing information. Sales price does not include other costs such as taxes, title fees, insurance premiums, filing or recording fees, land or improvements to the land, optional home features, optional delivery or installation services, wheels and axles, community or homeowner association fees, or any other items not shown on your Sales Agreement, Retailer Closing Agreement and related documents (your SA/RCA). If you purchase a home, your SA/RCA will show the details of your purchase. Homes available at the advertised sales price will vary by retailer and state. Artists’ renderings of homes are only representations and actual home may vary. Floor plan dimensions are approximate and based on length and width measurements from exterior wall to exterior wall. We invest in continuous product and process improvement. All home series, floor plans, specifications, dimensions, features, materials, and availability shown on this website are subject to change.





















